C house/
Interior/
2018/








Interior Design
Role: Lead Architect
Construction : Gravity
Photo : Dongkyun Vak
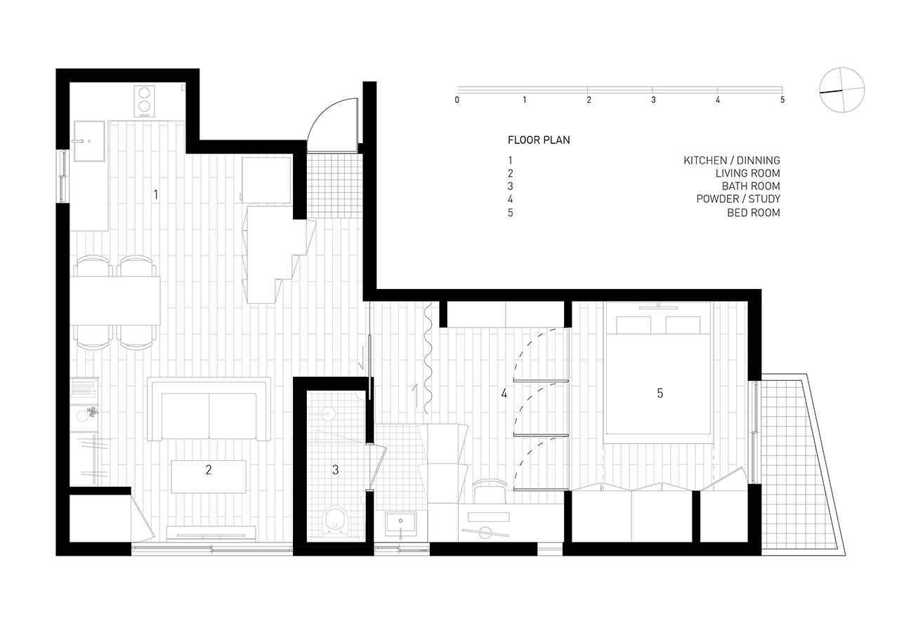
It was a project to convert two studio-type units into a single home for a two-person household.
I aimed to create multiple layers within the space.